施工事例

2023/01/17更新

Y様邸マンションリノベーション工事

今回はマンションにお住まいのY様邸でリノベーション工事を行います。   【主なリノベーション内容】 ■設備機器(キッチン・浴室・洗面化粧台・トイレ)交換 ■2LDKの間取りを1LDKとし、LDKを広くする ■リビング一角にワークスペースを造作 ■全面クロス貼替 ■無垢挽板フローリングに貼替 ■内窓設置    

完成

  ついに完成致しました! お客様から図面掲載の許可を頂けましたので、まずは図面でどのように変わったのかご覧ください。    

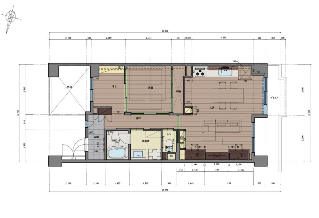
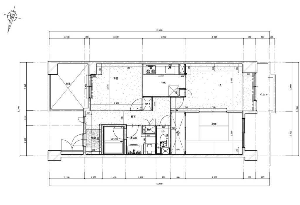
図面

【before】   【after】 キッチンの位置やお部屋の変化がよくわかりますね!   それでは、お部屋の中をご覧いただきましょう。  

玄関

玄関を入ると、正面壁のニッチが迎えてくれます。 玄関スペースは広げましたが、かぎ状になっているため室内が見えてしまうことなくやんわり視線は遮っています。    

廊下

玄関からLDKへの廊下。     両サイドに寝室や洗面・トイレがあるため建具がずらっと並んでいますが白で統一されたため圧迫感はありません。 LDKへの入口のみネイビーを選択されたので奥行を感じられます。 廊下から寝室・LDKの床材は無垢の挽板フローリングです。  

LDK

LDKに入ってすぐの壁にはスイッチやインターホン、エアコン等のリモコン用ニッチ。 こちらにスマホやタブレットもまとめて置かれるとのことで、コンセントも設けました。     LDK北側にはワークスペースを。 真ん中のTV台を挟んでご夫婦それぞれのワークスペースです。     壁には目に優しいグリーンのアクセントクロスを採用されました。  

キッチン

ワークスペースと向かい合う南側はキッチンです。     【システムキッチン:シエラ/LIXIL】 【食洗機:フロントオープン食洗機/リンナイ】 【水栓:蛇口一体形浄水器LC/タカギ】   キッチンパネルにはサテングレーを採用されたので、お部屋の雰囲気にもよくなじんでいます。  

寝室

LDKお隣の寝室は落ち着いた濃い木目柄のアクセントクロスを。 でも遊びゴコロは忘れず収納内部は優しい黄色のクロスです。    

ウォークインクローゼット

寝室の隣にはウォークインクローゼットを設け、全面パネルの引戸で間仕切りです。    

洗面室・お風呂・トイレ

洗面室・トイレにもそれぞれ清潔感のあるクロスを選択され、心地いい空間となりました。    

バルコニー側の掃き出し窓2ヶ所と玄関横ウォークインクローゼットの腰窓には内窓も設置しました。     ご契約から短期間での着工となり、 Y様には毎週のようにお打合せのお時間をいただきましたが ご希望イメージが具体的なY様とのお打合せはとても楽しい時間でした。   Y様ありがとうございました。      

工事中の様子2

     

工事中の様子

工事が始まりました。    

施工前の様子

Y様邸リノベーション Y様邸リノベーション Y様邸リノベーション Y様邸リノベーション Y様邸リノベーション Y様邸リノベーション Y様邸リノベーション Y様邸リノベーション   まだまだ工事は始まったばかりです。 作業が進みましたら、随時更新していきますのでお楽しみに!