リノベーション・リフォーム費用

リフォームコストマンション

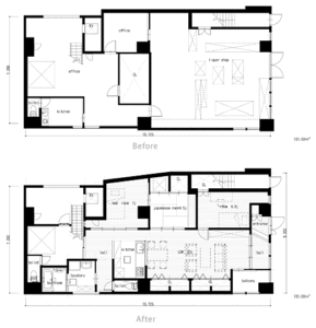
記載している費用はあくまでも施工費の目安とお考え下さい。 使用する材料や建物の状況によって違ってきます。また、基礎、壁、柱といった補強、補修工事が 必要な場合がございます。明確な費用は当社で現地の確認、お打合せ後に、詳細な見積書を提出させて頂きます。

施工面積を入力いただくと
リノベーションの価格が出ます

マンション

施工面積
m2
販売価格
¥

0

  • 別途消費税がかかります。
  • 照明・エアコン・カーテン・家具・外構工事は別途工事となります。