リフォームコスト店舗
記載している費用はあくまでも施工費の目安とお考え下さい。 使用する材料や建物の状況によって違ってきます。また、基礎、壁、柱といった補強、補修工事が 必要な場合がございます。明確な費用は当社で現地の確認、お打合せ後に、詳細な見積書を提出させて頂きます。
-
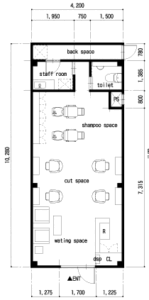
店舗リフォーム 美容室 約547.2万円※店舗の規模などにより異なります
【内訳】
- 仮設解体工事… 21.6万円
- 木工事・造作工事… 69.12万円
- 家具工事… 40.32万円
- アルミ工事… 25.92万円
- 左官・タイル工事… 43.2万円
- 給排水設備工事… 72万円
- 電気・照明工事… 105.12万円
- 内装・塗装工事… 70.56万円
- 設備機器… 48.96万円
- 雑工事・諸経費… 40.32万円
- 設計・申請費用… 21.6万円
店舗のリフォーム・リノベーションは、落ち着きがありながらも「非日常の洗練のある空間」を得意としています。
訪れた人が、心地の良い時間を過ごせ、次もまた来たくなるような店舗に。
こちらの美容室は、座りごこちを追及し家具もオリジナルで作成されました。照明にもこだわり、他の美容室にはない個性的な空間が出来上がりました。
その他の店舗 業種問わずご相談に乗らせていただきます

店舗の完成イメージ、理想、こだわりなどぜひリフォシーにご相談ください。新しい物件から古民家や町家のリノベーションまで トータルにサポート致します。店舗申請などに関しても経験豊富です。